PREIS

Damit Sie sich in etwa ein Bild über die Höhe der Anschaffung einer M1 Küche machen können, haben wir einige verwirklichte Planungen ausgewählt. Es sind PREISBEISPIELE die sich sowohl aus Teilen des Metallregalsystems als auch aus verschiedenen Schränken zusammensetzen.

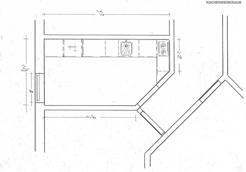
Handy-Fotos vom Kunden, ungestylt - "aus dem richtigen Leben"

Weiterhin beinhaltet der Preis eine hochwertige Edelspüle mit Slimkante und eine Markenmischbatterie der Firma Franke. Die Arbeitsplatten sind hochverdichtete Spanplatten. Im Einzelverfahren gefertigt. Wasserdicht belegt mit Schichtstoff und mit extra angeleimten Kanten. Jede Platte ist in der Wunschfarbe des Kunden hergestellt. Keine Fertigplatte! Unser breites Spektrum an Arbeitsplatten verschiedenster Materialien wie Edelstahl, Massivholz, Granit, Kunststein, Emaille oder Corean konnte bei dieser Übersicht nicht dargestellt werden. Die größte Anschaffung sind immer die Schränke. Wenn man einerseits ca. 50 bis 110 Euro für einen verchromten Gitterboden ansetzen kann, kostet ein Schrank zwischen 200 und vielleicht 800 Euro. Das sind normale Preishöhen innerhalb der hochwertigen deutschen Hersteller. Sie sind mit Teleskop-Auszügen z. b. von Blum oder Hettich ausgestattet. Unser Hersteller (ProNorm) fertigt im „Westfälischen Küchendreieck“ und beliefert uns zuverlässig seit mehr als 25 Jahren. Deshalb können wir auch noch viel später einen Nachholbedarf problemlos bedienen. Die in den Beispielen angezeigten Preise sind incl. Mwst. Ohne Montage. Ohne Geräte. Für die Montage einer Küche mit ca. 300 cm Länge sind ca. 350 bis 450 Euro anzusetzen. (Ikea berechnet 200 Euro pro lfd. Meter!) Außerdem ist unsere Lieferung innerhalb Münchens kostenfrei!

Preisbeispiele 3.000-5.000 Euro

3.460 Euro

3.858 Euro

4.498 Euro

4.927 Euro

4.964 Euro

Preisbeispiele 5.000-7.500 Euro

5.106 Euro

5.664 Euro

5.690 Euro